Appartamento in palazzina di 4 locali in vendita MILANO (Id: 7992)


Appartamento in palazzina di 4 locali
milano, 1 montalbino

  • 720.000,00
  • 171 mq
  • 4 locali
  • classe energetica 122,00 kWh/m2 anno

Appartamento in palazzina di 4 locali
dettagli
Ref.7992
CittàMILANO
Investimento €720.000,00
Numero locali4
Superficie171 mq
ContrattoVendita
Tipo immobiliAppartamento in palazzina
Classe energeticaclasse energetica 122,00 kWh/m2 anno

Cerchi casa e devi anche vendere?


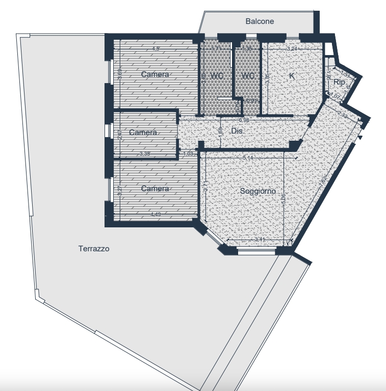
RIF 213 - MILANO ISTRIA - 4 LOCALI con 130mq DI TERRAZZO. A pochi passi dal rinomato "Quartiere ISOLA" e nelle immediate vicinanze delle metropolitane "M5 ISTRIA"-"M3 MACIACHINI" e dalle Linee Tram n. 5-7-31, bus n. 51-166, in stabile Signorile con portineria e affascinante giardino piantumato, perfettamente tenuto nelle parti comuni condominiali; proponiamo al primo piano con ascensore, un ELEGANTE appartamento di RAPPRESENTANZA composto da QUATTRO Locali e DOPPI servizi.

L’appartamento è così composto: Ingresso su SOGGIORNO DOPPIO LUMINOSO che gode di una parete finestrata dalla quale si può accedere allo sconfinato TERRAZZO di 130mq, completamente piantumato sul perimetro della casa, che regala spazio esterno e privacy allo stesso tempo, ideale per chi sta ricercando una soluzione in cui la parola chiave è "AMPIEZZA DEGLI SPAZI".
La cucina è abitabile e di generose dimensioni, con accesso all' ampio balcone di servizio che gode di un affaccio interno sul giardino piantumato. La zona notte è composta da due camere da letto matrimoniali oltre alla cameretta/studio (tutte con accesso diretto al terrazzo) e due bagni finestrati; completa la soluzione un comodo ripostiglio posto all'ingresso dell'immobile.


L'immobile si presenta in OTTIME CONDIZIONI interne con infissi in PVC doppio vetro taglio termico, tapparelle elettriche nel soggiorno, pavimentazione in Marmo di "ONICE ROSA" uniforme ad eccezione dei servizi e della camera matrimoniale in cui ritroviamo un parquet a listelli in legno Massello; porta blindata con serratura europea, aria condizionata in tutti gli ambienti, impianto audio interno ed esterno, inferiate su tutti gli infissi, impianto di videosorveglianza e impianto di allarme perimetrale, videocitofono, impianto di irrigazione esterno, tendone da sole esterno per creare uno spazio riservato, ideale per le cene estive in famiglia.

Completa l'appartamento la cantina posta al seminterrato primo.

BOX DI PERTINENZA (18mq) AL PIANO S1 DAL VALORE DI €40.000

Se hai un’immobile di proprietà, pensi di venderlo e vuoi conoscerne il valore, noi possiamo aiutarti. Ottieni la valutazione cliccando qui: https://www.bankasa.it/valuta-la-tua-casa

Appartamento in palazzina di 4 locali

Video tour


Nessun video tour disponibile

Virtual tour

Nessun virtual tour disponibile

Calcola l'importo totale del mutuo
indicando la rata mensile




Calcola la rata mensile
partendo dall'importo totale


(*) il risultato ottenuto è riferito alla media dei tassi attuali. Gli importi di mutuo erogabile e/o la rata mensile non costituiscono alcun tipo di offerta vincolante.



Calcolo il notaio


Valore immobile
Agevolazione fiscale 1° casa  
 
Credito di imposta  
 
Somma richiesta mutuo €  


PREVENTIVO


Rendita catastale €  
Calcolo valore imponibile fiscale € (se atto soggetto a registro)
Imposta di registro €  
IVA €  
Calcolo imposte fisse ipotecaria/catastale €  
Spese per la registrazione del compromesso €  
Spese per istruttoria pratica €  
Parcella notaio per la vendita € (iva inclusa)  
Parcella notaio per il mutuo € (iva inclusa)  
(iva inclusa)
Contatta un consulente Bankasa per avere la conferma dell’importo:
il preventivo è preciso ma non può essere considerato un informazione definitiva. Eventuali differenze di importo possono essere, ad esempio, dovute alla scelta del notaio che farai e/o alla presenza di pertinenze come box o crediti di imposta.


Parametri


Categoria catastale
A/2
Immobile acquistabile con agevolazione fiscale
SI
Tipo proprietario
PERSONA FISICA
Aliquota rendita catastale con agevolazione
115,50
Aliquota rendita catastale senza agevolazione
126,00
Minimo registro
1.000,00
Aliquota imposta di registro con agevolazione
2,00 %
Aliquota imposta di registro senza agevolazione
9,00 %
Imposta di registro acquisto con iva e agevolazione
200,00 %
Imposta di registro acquisto con iva senza agevolazione
200,00 %
IVA
22,00 %
IVA per acquisto con agevolazione fiscale 1° casa
4,00 %
IVA per acquisto senza agevolazione fiscale 1° casa
10,00 %
Imposta fissa ipotecarica nel caso di acquisto senza IVA
50,00
Imposta fissa catastale nel caso di acquisto senza IVA
50,00
Imposta fissa ipotecarica nel caso di acquisto con IVA
200,00
Imposta fissa catastale nel caso di acquisto con IVA
200,00
(*) tassi aggiornati alla data odierna







Milano Istria

Agenzia Milano Istria

Viale Sarca 181 - 20126 Milano
Tel. 02.64.234.94- 334.116.81.29
Seguici su Facebook
milanobicoccatesti@bankasa.it


RICHIEDI INFORMAZIONI

*Campi obbligatori

Consenso al trattamento dei dati personali
Consenso al trattamento dei dati


Consenso a ricevere info promozionali


Consenso a ricevere comunicazioni personali



Se questo immobile non soddisfa le tue esigenze, troveremo il tuo immobile ideale il prima possibile

Invia richiesta