Appartamento in condominio di 2 locali in vendita MILANO (Id: 8339)


Appartamento in condominio di 2 locali
milano, via san gregorio

  • 415.000,00
  • 70 mq
  • 2 locali
  • Certificazione energetica in definizione0,00 kWh/m2 anno

Appartamento in condominio di 2 locali

dettagli
Ref.8339
Cittàmilano
Investimento €415.000,00
Numero locali2
Superficie70 mq
ContrattoVendita
Tipo immobiliAppartamento in condominio
Classe energeticaCertificazione energetica in definizione0,00 kWh/m2 anno

Cerchi casa e devi anche vendere?


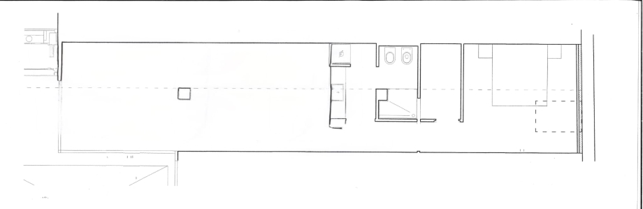
Rif. V2. - MILANO, VIA SAN GREGORIO, 40 - P.Venezia/Repubblica - Loft Ristrutturato

Al centro ed equidistante da zone di più grande interesse Meneghino e nazionale, a pochi passi da Stazione Centrale, Piazza Della Repubblica, Buenos Aires e P. Venezia (ormai centro di una nuova movida avanguardista), a due passi dai principali mezzi di trasporto (MM Repubblica ed MM centrale - Gialla e Verde) oltre 4 linee del tram a meno di 3 minuti a piedi ed altrettante linee bus; a due passi dai servizi di prima necessità, quali farmacie, ferramenta, supermercati ed a pochi minuti a piedi dalla passerella commerciale per eccellenza di Milano, Corso Buenos Aires.

Proponiamo in vendita un ampio loft posto al piano terra, con accesso da cortile condominiale; in stabile d'epoca e dotato di servizio portineria mezza giornata.

L'immobile si presenta completamente ristrutturato; finiture di pregio, partquet in rovere chiaro quale elemento principale ed omogeneo per tutta la casa.
La soluzione vanta anche un impianto di condizionamento freddo/caldo ed una privata zona di ingresso antistante l'accesso alla soluzione.

Cosa aspetti?
Contattateci per maggiori informazioni!

Se hai un’immobile di proprietà, pensi di venderlo e vuoi conoscerne il valore, noi possiamo aiutarti. Ottieni la valutazione cliccando qui: https://www.bankasa.it/valuta-la-tua-casa





Appartamento in condominio di 2 locali

Video tour


https://www.youtube.com/watch?v=ytnsViljr7o

Virtual tour

Nessun virtual tour disponibile

Calcola l'importo totale del mutuo
indicando la rata mensile




Calcola la rata mensile
partendo dall'importo totale


(*) il risultato ottenuto è riferito alla media dei tassi attuali. Gli importi di mutuo erogabile e/o la rata mensile non costituiscono alcun tipo di offerta vincolante.



Calcolo il notaio


Valore immobile
Agevolazione fiscale 1° casa  
 
Credito di imposta  
 
Somma richiesta mutuo €  


PREVENTIVO


Rendita catastale €  
Calcolo valore imponibile fiscale € (se atto soggetto a registro)
Imposta di registro €  
IVA €  
Calcolo imposte fisse ipotecaria/catastale €  
Spese per la registrazione del compromesso €  
Spese per istruttoria pratica €  
Parcella notaio per la vendita € (iva inclusa)  
Parcella notaio per il mutuo € (iva inclusa)  
(iva inclusa)
Contatta un consulente Bankasa per avere la conferma dell’importo:
il preventivo è preciso ma non può essere considerato un informazione definitiva. Eventuali differenze di importo possono essere, ad esempio, dovute alla scelta del notaio che farai e/o alla presenza di pertinenze come box o crediti di imposta.


Parametri


Categoria catastale
A/3
Immobile acquistabile con agevolazione fiscale
SI
Tipo proprietario
PERSONA FISICA
Aliquota rendita catastale con agevolazione
115,50
Aliquota rendita catastale senza agevolazione
126,00
Minimo registro
1.000,00
Aliquota imposta di registro con agevolazione
2,00 %
Aliquota imposta di registro senza agevolazione
9,00 %
Imposta di registro acquisto con iva e agevolazione
200,00 %
Imposta di registro acquisto con iva senza agevolazione
200,00 %
IVA
22,00 %
IVA per acquisto con agevolazione fiscale 1° casa
4,00 %
IVA per acquisto senza agevolazione fiscale 1° casa
10,00 %
Imposta fissa ipotecarica nel caso di acquisto senza IVA
50,00
Imposta fissa catastale nel caso di acquisto senza IVA
50,00
Imposta fissa ipotecarica nel caso di acquisto con IVA
200,00
Imposta fissa catastale nel caso di acquisto con IVA
200,00
(*) tassi aggiornati alla data odierna







Milano Repubblica

Agenzia Milano Repubblica

Via Luigi Settembrini, 30 - 20124 Milano
Tel. 02.48.63.41.82
Seguici su Facebook
milanorepubblica@bankasa.it


RICHIEDI INFORMAZIONI

*Campi obbligatori

Consenso al trattamento dei dati personali
Consenso al trattamento dei dati


Consenso a ricevere info promozionali


Consenso a ricevere comunicazioni personali



Se questo immobile non soddisfa le tue esigenze, troveremo il tuo immobile ideale il prima possibile

Invia richiesta